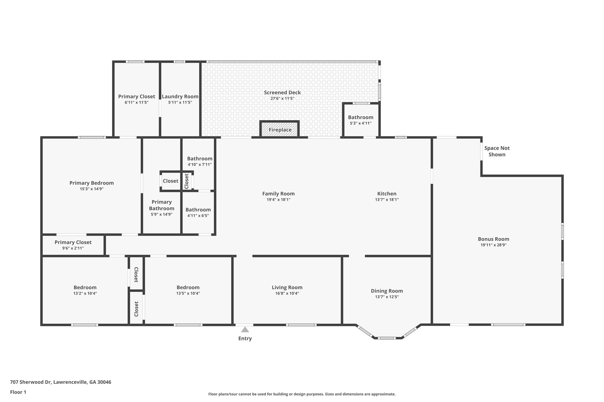
707 Sherwood Dr
GA
Images
Floor Plans
Map
Previous Photo
Next Photo
Slideshow
Photo Grid
Hide
Previous
Next
Show more
Floor 1
Slideshow
Photo Grid
Hide
Previous
Next